Wybór odpowiednich wymiarów otworu pod bramę segmentową o wymiarach 2500 x 2125 mm jest kluczowy dla zapewnienia prawidłowego funkcjonowania oraz bezpieczeństwa. Otwór musi spełniać określone wymagania prawne oraz praktyczne, aby brama mogła być swobodnie otwierana i zamykana. W tym artykule omówimy, jakie są niezbędne wymiary otworu, aby instalacja bramy była zgodna z normami i zapewniała komfort użytkowania.
Warto zwrócić uwagę na szczegóły, takie jak minimalna szerokość otworu, która powinna wynosić co najmniej 2,4 m, oraz wysokość, która musi być o 20-30 cm wyższa niż sama brama. Dokładne pomiary i odpowiednie przygotowanie otworu są kluczowe dla uniknięcia problemów w przyszłości. Przyjrzymy się również dodatkowym wymaganiom, takim jak szerokość nadproża i przestrzeń potrzebna do zamontowania napędu elektrycznego.
Najważniejsze informacje:- Minimalna szerokość otworu dla bramy segmentowej 2500x2125 wynosi 2,4 m.
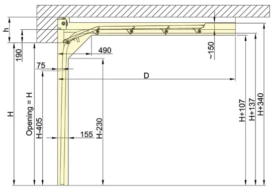
- Wysokość otworu powinna wynosić co najmniej 2325 mm, aby zapewnić odpowiednią przestrzeń dla bramy.
- Nadproże musi mieć szerokość co najmniej 125 mm dla montażu napędu elektrycznego.
- Dokładne pomiary otworu są kluczowe, aby uniknąć problemów podczas instalacji.
- Przygotowanie otworu wymaga znajomości specyfikacji technicznych i przepisów prawnych.
Wymiary otworu pod bramę segmentową 2500x2125 – podstawowe informacje
Otwór pod bramę segmentową o wymiarach 2500 x 2125 mm musi spełniać określone normy, aby zapewnić prawidłowe działanie bramy. Minimalna szerokość otworu powinna wynosić co najmniej 2,4 m, co jest zgodne z wymaganiami prawnymi. Długość otworu powinna być równa długości bramy, czyli 2500 mm, co zapewnia idealne dopasowanie.
Wysokość otworu również odgrywa kluczową rolę. Powinna być o 20-30 cm wyższa niż wysokość samej bramy, co pozwala na swobodne przesuwanie się bramy. Dla bramy segmentowej o wymiarach 2500 x 2125 mm, wysokość otworu powinna wynosić co najmniej 2325 mm, aby uniknąć problemów z funkcjonalnością.
Minimalna szerokość otworu dla bramy segmentowej 2500x2125
Minimalna szerokość otworu dla bramy segmentowej 2500 x 2125 mm wynosi 2,4 m. Ta szerokość jest niezbędna do spełnienia wymogów prawnych oraz zapewnienia komfortu użytkowania. Umożliwia to łatwe otwieranie i zamykanie bramy, a także zapewnia odpowiednią przestrzeń dla jej mechanizmu.
Wysokość otworu – co warto wiedzieć przy instalacji
Wysokość otworu pod bramę segmentową o wymiarach 2500 x 2125 mm jest równie istotna, jak jego szerokość. Powinna wynosić co najmniej 2325 mm, co oznacza, że musi być o 20-30 cm wyższa niż sama brama. Taka dodatkowa przestrzeń jest niezbędna, aby brama mogła swobodnie przesuwać się w górę i w dół, bez ryzyka zacięcia się.
Warto również pamiętać, że wysokość otworu wpływa na komfort korzystania z bramy. Zbyt niski otwór może prowadzić do problemów z otwieraniem, a także ogranicza możliwości montażu dodatkowych elementów, takich jak napęd elektryczny. Dlatego przygotowanie otworu o odpowiedniej wysokości jest kluczowe dla jego funkcjonalności i trwałości.
Jakie są wymagania dotyczące nadproża dla bramy segmentowej?
Nadproże jest kluczowym elementem konstrukcyjnym w przypadku instalacji bramy segmentowej. Wymagania dotyczące nadproża dla bramy o wymiarach 2500 x 2125 mm obejmują przede wszystkim jego szerokość, która powinna wynosić co najmniej 125 mm. Taka szerokość zapewnia odpowiednią stabilność oraz umożliwia montaż mechanizmu napędu elektrycznego, co jest istotne dla prawidłowego działania bramy.
Oprócz szerokości, nadproże powinno być wykonane z materiałów o wysokiej wytrzymałości, takich jak stal lub beton, aby mogło wytrzymać obciążenia związane z użytkowaniem bramy. Właściwe nadproże nie tylko wspiera strukturę otworu, ale także wpływa na bezpieczeństwo i trwałość całej instalacji.
Wymagana przestrzeń dla napędu elektrycznego bramy
Instalacja napędu elektrycznego dla bramy segmentowej wymaga odpowiedniej przestrzeni, aby zapewnić jego prawidłowe funkcjonowanie. Wymagana przestrzeń dla napędu powinna być dostosowana do jego wymiarów oraz rodzaju zastosowanego mechanizmu. Zazwyczaj potrzebna jest dodatkowa przestrzeń zarówno w wysokości, jak i szerokości, co pozwala na swobodne działanie napędu.
W przypadku bramy segmentowej o wymiarach 2500 x 2125 mm, należy zapewnić co najmniej 30 cm dodatkowej przestrzeni nad bramą, aby napęd mógł być zamontowany bez przeszkód. Odpowiednie zaplanowanie przestrzeni jest kluczowe, aby uniknąć problemów z instalacją oraz późniejszym użytkowaniem bramy.

Jak przygotować otwór pod bramę segmentową 2500x2125?
Aby prawidłowo przygotować otwór pod bramę segmentową o wymiarach 2500 x 2125 mm, należy rozpocząć od dokładnych pomiarów. Dokładność jest kluczowa, ponieważ wszelkie błędy mogą prowadzić do problemów z montażem i funkcjonowaniem bramy. Upewnij się, że otwór ma odpowiednią szerokość i wysokość, zgodnie z wcześniej ustalonymi wymogami. Należy również zwrócić uwagę na to, aby ściany otworu były proste i równe, co ułatwi instalację.
Ważnym krokiem jest także sprawdzenie poziomu gruntu oraz stabilności podłoża, na którym będzie montowana brama. Przygotowanie otworu powinno obejmować usunięcie wszelkich przeszkód, takich jak rury czy kable, które mogą wpłynąć na proces instalacji. Dobrze jest również zaplanować odpowiednią przestrzeń na montaż napędu elektrycznego, jeśli planujesz jego zastosowanie.
Kroki do prawidłowego pomiaru otworu dla bramy
Aby dokładnie zmierzyć otwór pod bramę segmentową o wymiarach 2500 x 2125 mm, należy wykonać kilka istotnych kroków. Po pierwsze, przygotuj odpowiednie narzędzia, takie jak taśma miernicza, poziomica i ołówek do oznaczania. Rozpocznij pomiar od szerokości otworu, mierząc od wewnętrznych krawędzi ścian. Upewnij się, że pomiar jest wykonany na wysokości, na której brama będzie zainstalowana, aby uniknąć błędów.
Następnie zmierz wysokość otworu, pamiętając o dodaniu dodatkowych 20-30 cm dla odpowiedniego funkcjonowania bramy. Dokładność pomiarów jest kluczowa, dlatego warto powtórzyć każdy pomiar kilka razy i sprawdzić, czy otwór jest prostokątny, używając poziomicy. Zapisz wszystkie wyniki, aby mieć je pod ręką podczas dalszych prac.
Najczęstsze błędy przy przygotowaniu otworu i jak ich uniknąć
Podczas przygotowywania otworu pod bramę segmentową mogą wystąpić różne błędy, które mogą wpłynąć na późniejszy montaż. Jednym z najczęstszych błędów jest niedokładne pomiarowanie, co prowadzi do niewłaściwych wymiarów otworu. Aby tego uniknąć, zawsze mierz w kilku miejscach i porównuj wyniki.Kolejnym typowym problemem jest nieusunięcie przeszkód, takich jak kable czy rury, które mogą kolidować z instalacją. Upewnij się, że otwór jest wolny od wszelkich przeszkód i że ściany są równe. Dokładne przygotowanie otworu to klucz do sukcesu, dlatego warto poświęcić czas na staranne wykonanie wszystkich kroków.
